
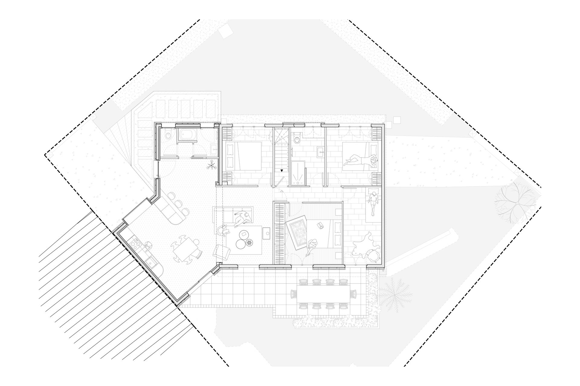
Les propriétaires de cette maison de vacances construite au milieu d’un terrain à l’angle de deux rues au Touquet, souhaitaient gagner de la surface pour être en mesure d’accueillir tous leurs enfants et petits-enfants.
Nous avons conçu une extension en ossature bois qui relie la maison à la villa voisine, et qui intègre le séjour et la cuisine, ainsi qu’une petite salle de bain à côté de l’entrée, pratique pour se dessabler au retour de la plage.
Le nouveau volume habillé d’un bardage bois laqué blanc est posé sur un socle de béton lasuré qui se prolonge en escalier d’accès côté rue.
Une large baie en saillie offre depuis le coin repas une perspective sur une pinède plantée de l’autre côté de la rue.
On retrouve ce même bardage bois côté jardin et les détails en tôle laquée champagne.
LIEU :
Le Touquet-Paris-Plage, Pas-de-Calais
SURFACE :
100 m²
STATUT :
Livré
PHOTOGRAPHIES :
© Desnoulez Laufer - Architectes
Rénovation et extension d'une villa au Touquet
BEL







Avant les travaux…

Dessins

