
Situé au deuxième étage d’une résidence des années 60, cet appartement donnant sur le bois de Boulogne a été entièrement rénové.
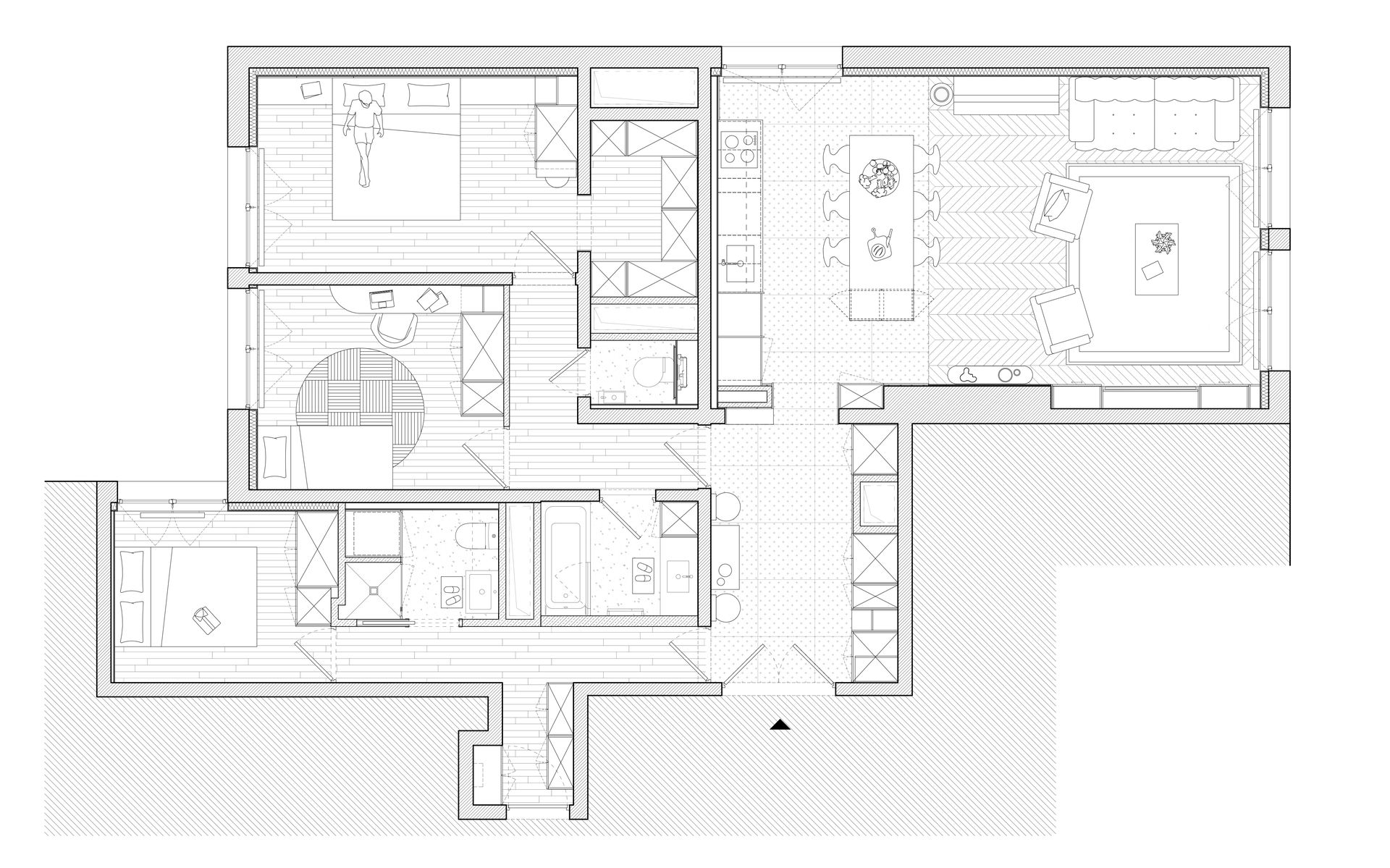
Le plan général a été optimisé avec le déplacement de la cuisine dans le séjour, ce qui a permis de gagner une chambre supplémentaire, côté cour.
L’ensemble de l’agencement a été réalisé sur mesure afin de répondre à chacun des souhaits des clients, et s’intègre parfaitement aux espaces donnés. Une grande importance est donnée aux détails de finitions.
L’atmosphère de cet appartement se veut chaleureuse, contemporaine et haut-de-gamme, grâce à l’usage du bois massif (chêne) et à la minéralité de la pierre naturelle (Taj Mahal).
LIEU :
Neuilly-sur-Seine, Hauts-de-Seine
SURFACE :
100 m²
STATUT :
Livré
PHOTOGRAPHIES :
© Desnoulez Laufer - Architectes | © Consentino
Rénovation d'un appartement à Neuilly
CHA









Avant les travaux…
Dessins

