
Située dans la région de Saint-Omer, cette ancienne ferme carrée, entourée de douves, était jusqu’alors laissée à l’abandon. Les nouveaux propriétaires souhaitent transformer ce lieu chargé d’histoire en une résidence secondaire contemporaine et chaleureuse pour accueillir leur famille.
Une première phase importante de relevé de l’existant nous a permis de faire un état des lieux du bâti, fortement abîmé.
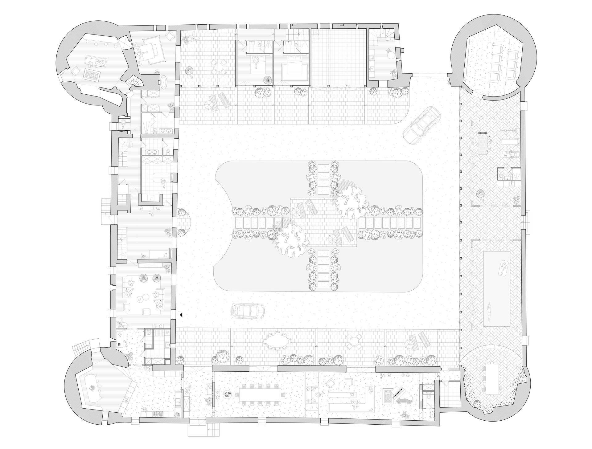
Nous avons ensuite décliné plusieurs esquisses de plans, en articulant les espaces entre les quatre ailes de la ferme.
Pour l’aile principale, les espaces réception. Pour l’aile secondaire , les espaces dédiés à la famille. Ensuite, une aile entièrement dédiée au bien-être, avec piscine intérieure notamment, et enfin, une aile tournée vers le paysage.
Cette refonte globale propose une relecture contemporaine du patrimoine, conciliant mémoire du lieu et art de vivre actuel.
LIEU :
Région de Saint-Omer, Pas-de-Calais
SURFACE :
600 m²
STATUT :
Esquisse
PHOTOGRAPHIES :
© Desnoulez Laufer - Architectes
Rénovation d'une ferme fortifiée
RON


Avant les travaux…





Dessins


