
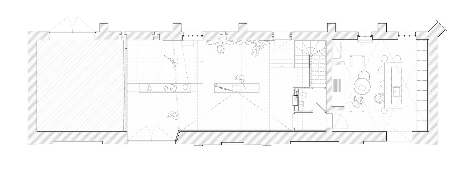
C’est au sein de l’aile sud du château, celle séparant la cour d’honneur de la cour de ferme, que prend place notre projet.
Il s’agit ici de créer un espace dédié au loisir de la chasse, avec d’un côté une salle d’entraînement au tir, grâce à des simulateurs brevetés et des mises en scène différentes, et de l’autre un lieu de détente et de partage, articulé autour d’une imposante cheminée et d’un bar convivial.
Un important travail de restauration des matériaux existants a ici été effectué : façade extérieure en brique jointées à la chaux, poutres en bois, sol en pavés, voûtes en pierres et cheminée en briques.
Un seul et même sol en micro-mortier a été coulé afin d’unifier ces deux espaces. Enfin, le béton brut, le bois et le pliage du métal sont des éléments caractéristiques de ce projet qui allie modernité et respect de l’ancien.
LIEU :
Région de Fruges, Pas-de-Calais
SURFACE :
91 m²
STATUT :
Livré
PHOTOGRAPHIES :
© Albane Delacommune
Transformation d'une dépendance
TRA















Avant les travaux…



Dessins

