
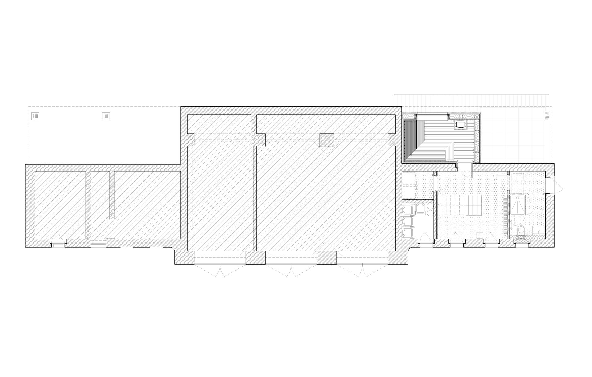
C’est au sein d’une ancienne grange donnant sur la cour de ferme du château, que prend place cet espace wellness.
Un important travail sur les volumes intérieurs a ici été effectué, afin de relier les espaces entre eux et de redonner une double hauteur au hall d’entrée.
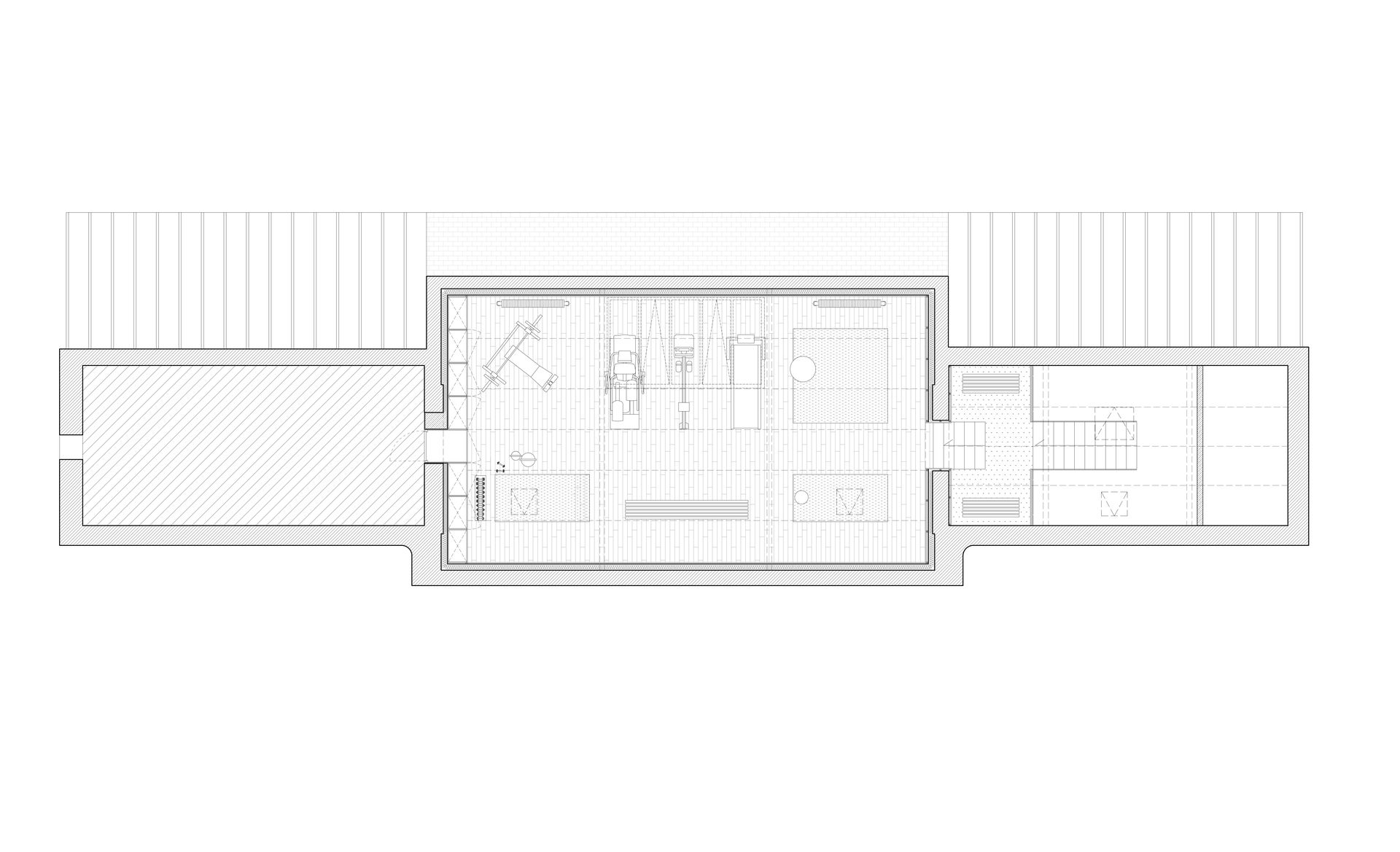
Un escalier sur-mesure en béton a été créé et donne désormais accès à une salle de sport toute revêtue de bois, et largement ouverte sur le potager en contrebas grâce à une grande verrière orientée nord.
Les pignons de cet espace, habillés de contreplaqué bouleau, répondent au parquet en chataîgnier massif et aux tasseaux des rampants.
Ce travail du bois se retrouve également dans le sauna du rez-de-chaussée, intégrant lui aussi la notion de paysage grâce à sa grande baie fixe donnant sur le potager.
LIEU :
Région de Montreuil-sur-Mer, Pas-de-Calais
SURFACE :
85 m²
STATUT :
Livré
PHOTOGRAPHIES :
© Albane Delacommune
Transformation d'une grange en espace Wellness
REC
















Avant les travaux…



Dessins



